
CLW5140JQJCDP桥梁检测车
所属型号 桥梁检测车
车辆咨询:138-7286-9006
车辆咨询:159-9786-8898
车辆咨询:134-0966-6299
业务跟单:138-7289-0023
业务跟单:138-7289-1231
业务跟单:188-2759-1097
技术支持:158-9761-6129
地址:湖北省随州市曾都区南郊柳树淌工业园柳树淌大道9号
CLW5140JQJCDP桥梁检测车 集团简介
程力汽车集团股份有限公司简称“程力集团”,创立于2004年,其前身为湖北程力汽车公司,其总部位于炎帝神农故里,编钟古乐之乡,**专用汽车之都--湖北省随州市,集团总注册资本5亿元,是一家集汽车整车、专用汽车、新能源汽车、汽车零部件和应急装备等研发、制造、销售、汽车金融服务于一体的多元化集团公司。
企业发展规模:在随州市曾都区南郊(程力专汽公司)、曾都经济开发区(程力集团公司、程力大力公司)、武汉市黄陂区(程力重工公司)和襄阳东津新区(程力新富公司)等地建有四大核心生产基地,现占地5000余亩,在册员工13000人,建筑面积200多万平方米,各类大型生产设备5000多台(套),下属17个子公司、100多个专业厂、40多个成员厂,年可生产汽车底盘5万台(套)、专用车10万辆、新能源汽车1万辆、应急装备2万台(套),集团在广东清远、贵州贵阳、吉林长春、内蒙乌兰察布、宁夏银川、甘肃定西等地建有联营制造基地和综合服务基地。
企业资质资源能力:取得ISO9001质量管理、ISO14001环境管理、ISO 45001职业健康安全管理、售后服务、能源体系等体系认证、国**标、保密及国防建设配套服务资质认证、3C强制性认证、美国机械工程师阿斯米(ASME)认证、欧盟协议ADR认证。拥有专用汽车、随车起重机、汽车吊、消防车、新能源汽车、汽车整车、客车等**资质资源。
研发实力:集团设有“省级企业技术**”、“省级工程技术研究**”、“应急救援保障车湖北省工程研究**”,现有1300多名技术人员,设有“省博士后创新实践基地”、“武汉理工大学大学生实训基地”等创新平台。自主创新产品获得500多个****。
生产制造装备能力:公司拥有完善的试制场地及检测设备。拥有生产、检测设备5000余台(套),集团核心企业“程力专用汽车股份有限公司”以品种多、资质全、生产设备**、检测手段完备等特点,成为**专汽龙头企业;“程力新能源汽车制造公司”拥有国内**的新能源整车生产线和整套检测线;“程力商用汽车有限公司”拥有**的商用车生产线,满足微、轻、中、重卡汽车底盘生产需求;“程力重工股份有限公司”是**高端专用车制造典范企业;“程力应急装备制造湖北有限公司”是应急产业装备的创新企业,生产的各类抢险救援车型具有国内**水平。
企业知名度和品牌影响力:“程力威”、“大力”**获得“湖北省****”、“湖北省**”、“******”,共有3000多个品种上**公告目录。产品畅销全国29个省市自治区,并出口50多个**和地区,其中环卫车和轻型专用车销量连续多年稳居全国榜**。2023年集团位列“**民企500强”第378位、“湖北民企制造业100强”第5位。
集团荣获“湖北省**民营企业”、“湖北省具有发展潜力企业”、“全省国税百佳纳税人”、“全省非公有制企业双强百佳党组织”、“全国就业与社会保障**民营企业”、“全国‘万企帮万村’精准扶贫行动**民营企业”、“全国100家抗疫**民营企业”等称号。集团董事长程阿罗荣获湖北省“五·四青年奖”、“**企业家”、“杰出楚商”和“全国民营企业抗疫**个人”等称号。
“长风破浪会有时,直挂云帆济沧海”。在各级党和**的坚强**和支持下,程力集团将继续以“三个坚持”为指导思想,以“百年程力、千亿产值”为发展目标,为打造“**一流专用汽车企业”而不懈努力。
程力桥梁检测车
产品名称 | 桥梁检测车 | 产品型号 | CLW5140JQJCDP |
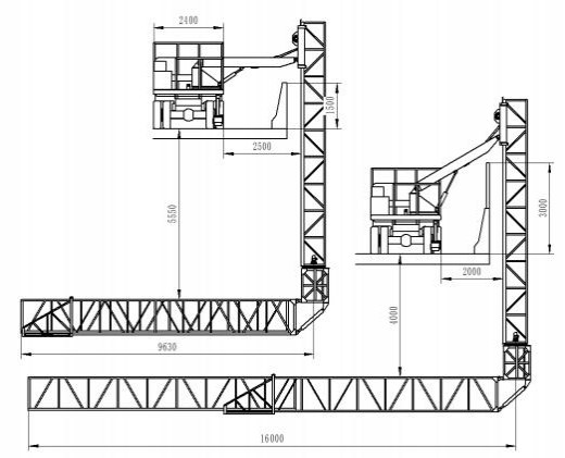
总质量(Kg) | 13800 | **作业跨度(m) | 16 |
额定载质量(Kg) | / | 外形尺寸(mm) | 9510×2400×3500 |
整备质量(Kg) | 13605 | 轮胎规格 | 8.25R20 16PR |
发动机型号 | WP4.1NQ190E61 | 功率(KW/马力) | 140/190 |
轴数 | 2 | 轴距(mm) | 4700 |
**可以跨人行道距离(m) | 2.2 | **深施工高度(m) | 5.55 |
工作平台伸出后长度(m) | 16 | 工作平台缩回状态(m) | 9.63 |
行走速度m/min | 0-300 | **跨护栏高度尺寸(mm) | 3000 |
缩回时平台额定荷载(Kg) | 400 | 伸出时平台额定荷载(Kg) | 300 |
尾部荷载(Kg) | <100 | 液压泵排量ml/r/液压**压力MPa | 20ml/14MPa |
其他配置:由货车底盘、液压站、固定平台、回转盘、大臂、提升臂、连接柱、固定施工平 台、伸缩施工平台等部件组成。回转盘尾部加载配重块,固定平台左侧增加平衡 配重、右侧增加前支撑、后支撑。提升臂、旋转架、固定平台、伸缩平台采用桁 架结构,轻量化设计,具有较强的承载能力。 | |||
产品方位图


操作人员在作业前必须佩戴好安全帽、系好安全带、防坠器、安全扣、 穿好防滑鞋,进入工作平台必须依次上下,确保上一个人安全到达后另一个人再 上下。
施工时尽量在固定平台中间或者靠近旋转架端进行,伸缩平台近可能 的缩回施工,不要集中尾部受力,防止工作平台倾翻。
由于伸缩平台伸出较长,因此伸缩平台伸出时**承载能力为
300kg(包括施工人员),缩回时**承载能力为 400kg(包括施工人员)。载荷必 须均匀分布,严禁超过额定载荷,载重物规格不能超过 100kg/平方,平台尾部载 荷不超过 100kg。
重要提示:本施工平台缩回状态是 9.63 米,伸缩平台伸缩范围 6.37 米,施工时**伸出 16 米,承载需要相应减少,严禁超载施工。
本设备采用货车底盘,请按货车的使用说明进行日常维护。
严禁发动机在工作时进行检修或调整。
液压油每工作 100 小时更换一次;500 小时清理一次油箱,更换滤芯,其 他油类每工作 300 小时更换一次;润滑脂每工作 10 小时注射一次,100 小时轮胎 螺栓检查一遍,防止脱落。







| ·可按用户要求为根据用户的实际需求,为每位用户打造品质、个性化的专用车,欢迎新老客户来电来人考察订购和自带底盘改装! ·创优质服务企业; 造用户满意产品; 树品牌!公司坚持以“质量求生存、信誉求发展、科技创新路、服务创品牌”的经营理念,以“诚信、务实、创新、进取”为企业宗旨,不断提升自身产品质量,开发适应市场需求物美价廉的多功能专用汽车! |

我们将谒诚为您提供好、快、优质的服务! ·**步:购车洽谈: 通过电话联系或实地考察洽谈车辆型号、价格和相关要求。 ·**步:签订合同: 双方签订车辆购销合同并预付合同定金(传真签订合同、实地签订合同均可)。 ·第三步:安排生产: 我公司根据合同要求,安排车间生产。 ·第四步:交付车辆: 车辆交付验收,支付车辆余款,完成相关手续。 交付方式:客户可自提车辆,也可协商由我公司安排送车并协定相关费用.更多详细订车流程请来电咨询! |

售后服务承诺书
本公司是一家专用汽车企业。多年来经过公司全体员工的不懈努力,已形成一条完整的设计、销售、质量检测和售后服务的产业链。售后服务是我公司售前、售中和售后环节中的重要支柱。特别是近几年来随着公司能力的不断提升和出口贸易的展开,售后服务体系得到了完善。
服务体系
一、服务体系是质量管理体系的重要环节。
二、服务保障:本公司服务是严格履行公司程序文件和质量手册,结合市场和用户的要求,给予保障。
三、服务宗旨:专业创造价值,诚信铸就未来!
四、服务机构:在销售公司下的售后服务部门,负责公司售后服务工作和管理各驻外机构的服务工作。
服务原则
在用户严格遵循使用说明书,正常操作的情况下,自购车之日起(以车辆出厂登记卡为准)一年内,行驶里程不超过 25000公里之内,因设计、装配原因引起的产品机件损坏,经有关汽车服务站和监督部门鉴定后,在三个工作日内向我公司售后服务部门提交书面资料,售后服务部门确认后实行三包服务。
具体服务如下:
1、三包服务期内的产品质量以包修为主,修理费全免(不包括易损件和电器部分)。
2、终身保修。超过包修期内的产品,需更换配件的只收取相关成本费。
3、免费培训操作员:
⑴ 由我厂安排工程师现场指导,学习理论及实际操作;
⑵ 掌握专用车的基本理论,性能以及功能;
⑶ 按程序能熟练的操作;
⑷ 能进行正常的日常维护,排除一般技术故障。
